Aardheuvel 57
5685 AB Best
Aardheuvel 57
Op één mooie woonlocatie gelegen vrijstaande en energiezuinige woning van maar liefst 788 m³ en een oppervlakte van 188 m² inclusief de royale inpandige garage. De woning heeft op de begane grond te bieden een gezellige living in L-vorm met veel daglichttoetreding, een fijne woonkeuken voorzien van een complete keukeninrichting die middels openslaande deuren ook bij de woonkamer kan worden getrokken, rechtstreeks vanuit de hal te bereiken kantoor/slaapkamer, bijkeuken, kelderruimte en zoals ...
Interesse in deze woning
Neem contact op
0499 33 58 58
Kenmerken
Omschrijving
Op één mooie woonlocatie gelegen vrijstaande en energiezuinige woning van maar liefst 788 m³ en een oppervlakte van 188 m² inclusief de royale inpandige garage.
De woning heeft op de begane grond te bieden een gezellige living in L-vorm met veel daglichttoetreding, een fijne woonkeuken voorzien van een complete keukeninrichting die middels openslaande deuren ook bij de woonkamer kan worden getrokken, rechtstreeks vanuit de hal te bereiken kantoor/slaapkamer, bijkeuken, kelderruimte en zoals eerder vermeld een royale inpandige garage met toegang tot een geïsoleerde extra etage.
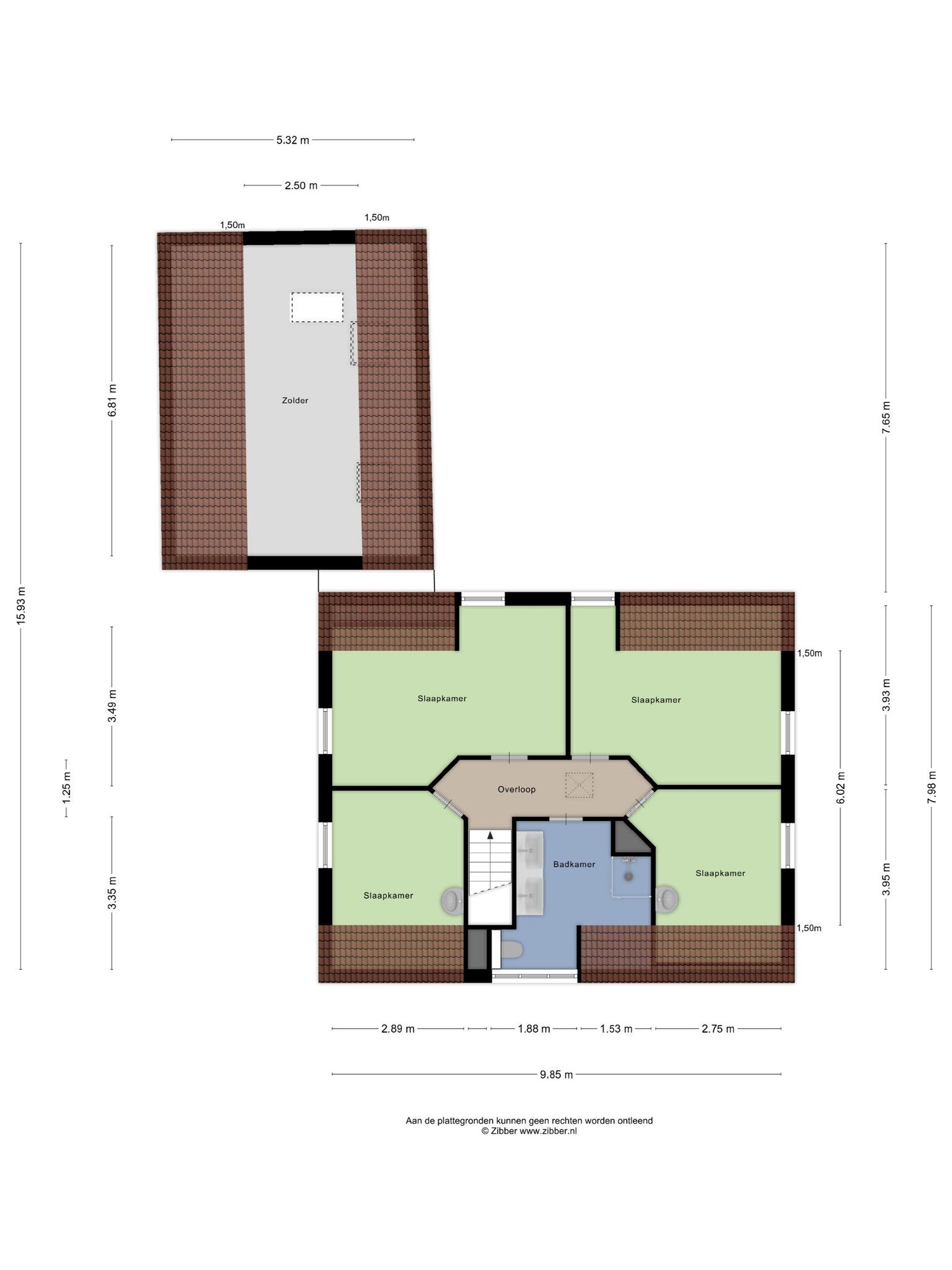
Op de 1e verdieping treft u de 4 overige slaapkamers, eigentijdse en recent compleet verbouwde badkamer en overloop met een vlizotrap naar de praktische bergzolder op de 2e verdieping.
Type woning: Vrijstaande woning
Energielabel: A
Bouwjaar: 1995
Perceel oppervlak: 433 m²
Woonoppervlak: 151 m²
Overig inpandige ruimte: 60 m² waarvan 32 m² garage
Inhoud: 788 m³
Energiezuinig: De woning is voorzien van 18 zonnepanelen, vloer-, gevel-, en dakisolatie alsmede HR dubbele beglazing.
Gelegen op een gewilde woonlocatie in de woonwijk "Heuveleind" nabij goede voorzieningen als scholen, winkelcentrum, recreatie, sportaccommodaties, treinstation en belangrijke uitvalswegen.
Graag willen wij u rondleiden in deze woning, zodat u de woning met eigen ogen kunt bekijken.
Hiervoor kunt u contact opnemen met ons kantoor.
INDELING:
BEGANE GROND:
Overdekte entree met een een aluminium voordeur.
Ontvangsthal afgewerkt met een tegelvloer, stucwerk wanden en een fijn schuurwerk plafond.
Meterkast met de gas- en elektrameter, glasvezelaansluiting en de uitgebreide groepenkast voorzien van diverse groepen en aardlekschakelaars.
Geheel betegelde toiletruimte met een zwevend closet en een fonteintje.
Slaapkamer 1 / werkkamer o.a. via loopdeur in hal en keuken te bereiken.
Deze kamer is afgewerkt met een tegelvloer, stucwerk wanden en een fijn schuurwerk plafond.
Ruime sfeervolle living in L-vorm afgewerkt met een tegelvloer voorzien van vloerverwarming, behangen wanden en een fijn schuurwerk plafond.
De keukenruimte is volledig afsluitbaar naar de woonkamer middels openslaande houten deuren en is afgewerkt met een tegelvloer voorzien van vloerverwarming.
De keukeninrichting in hoekopstelling is voorzien van een kunststof aanrechtblad, diverse laden en kasten, anderhalve rvs spoelbak, vaatwasmachine, elektrische oven, koelkast, keramische kookplaat en een afzuigkap.
Verdiepte betegelde trapkast met legplanken.
Deels betegelde bijkeuken met de aansluiting t.b.v. wasapparatuur en een stortgootsteen.
Royale inpandige geheel in spouwmuur uitgevoerde garage met een sectionaaldeur, loopdeur naar de bijkeuken en achtertuin.
In de garage is tevens opgesteld de HR c.v. combiketel van Nefit Topline uit het jaar 2010, pomp t.b.v. de vloerverwarming en een wandradiator.
De ruime verdieping boven de garage is te bereiken via een vlizotrap.
Deze ruimte is volledig geïsoleerd en heeft 2 Velux dakvensters en de opstelling van de zonneboiler.
1E VERDIEPING:
Middels trapopgang in hal te bereiken.
Overloop afgewerkt met een kurkvloer, pleisterwerk wanden en een fijn schuurwerk plafond.
Slaapkamer 2 aan achterzijde met een praktische inbouwkast en de kamer is afgewerkt met een kurkvloer, behangen wanden en een fijn schuurwerk plafond.
Slaapkamer 3 aan voorzijde met een vaste wastafel en afgewerkt met een kurkvloer, behangen wanden en een fijn schuurwerk plafond.
Slaapkamer 4 aan achterzijde is afgewerkt met een kurkvloer, pleisterwerk wanden en een fijn schuurwerk plafond.
Slaapkamer 5 aan voorzijde met een vaste wastafel en afgewerkt met een kurkvloer, pleisterwerk wanden en een fijn schuurwerk plafond.
De ruime en eigentijdse betegelde badkamer is voorzien van een inloopdouche met thermostaatkraan, zwevend closet en een badmeubel met geïntegreerde dubbele wastafel.
2E VERIEPING:
Via vlizotrap te bereiken.
Ruime bevloerde en geïsoleerde bergzolder afgewerkt met vaste vloerbedekking.
BUITEN:
Voortuin is aangelegd met sierbestrating en beplanting.
Oprit geschikt voor meerdere auto’s en is deels overdekt met een aanpandige carport met buitenkraan.
De achtertuin met een afsluitbare achterom is aangelegd met terrastegels, sierbestrating en diverse beplanting.
ALGEMEEN:
* Het betreft hier een traditioneel en degelijk gebouwd vrijstaand woonhuis met gemetselde binnen- en buitengevels, betonnen verdiepingsvloer en een houten kapconstructie met pannen gedekt
* De woning bezit een officieel energielabel A waardoor een hypotheek mogelijk is met gunstigere voorwaarden.
* De woning is voorzien van vloer-, gevel- en dakisolatie alsmede HR++ dubbele beglazing op de begane grond en HR beglazing op de 1e verdieping.
* Energiezuinige Nefit Topline HRC c.v. combiketel uit 2010.
* In 2018 zijn er 18 zonnepanelen geïnstalleerd op het dakvlak aan voor en achterzijde voor een optimaal rendement.
* In de nabije omgeving van de woning bevinden zich meerdere speelveldjes met speeltoestellen en op circa 100 meter loopt u zo de mooie natuur in voor een fijne wandeling.
* Voldoende parkeermogelijkheden op eigen terrein en de parkeervakken op de openbare weg.
* Deze woning is uitermate geschikt voor aan huis gebonden beroepen mede door de kantoorkamer op de begane grond die rechtstreeks vanuit de hal te bereiken is.
* Natuurlijk is deze kamer tevens als slaapkamer te gebruiken.
* De royale inpandige en volledig in spouwmuur opgetrokken garage is volledig voorzien van isolatie. Hierdoor is deze ruimte ideaal geschikt om in gebruik te nemen als extra kantoorruimte of zelfs een aanleunwoning.
* Een deel van de garage zou gebruikt kunnen worden als 2e badkamer. Door deze ingreep is het mogelijk om volledig op de begane grond te wonen. Wat natuurlijk ideaal is voor bewoners die door leeftijd of andere redenen liever niet te veel trappen meer willen lopen.
* Gelegen op korte afstand van goede voorzieningen zoals:
- Treinstation Best
- Snelweg op-/afrit (A2, A50 en A58)
- Supermarkt
- Kinderopvang
- Basisonderwijs
- Voortgezet onderwijs (Heerbeeck college)
- Diverse sportverenigingen
- Eindhoven airport
- Brainport regio.
* Deze documentatie is puur informatief en hieraan kunnen geen rechten worden ontleend aan ons kantoor of verkopers. De koper heeft het recht en plicht tot het onderzoeken van de technische bouwkundige staat, inzien van de bestemmingsplannen, inhoud en oppervlakte maten en het controleren van de inhoudelijk benoemde zaken in deze brochure en die op Funda vermeld staan.
Plattegronden
Foto's

