Johan Brouwerstraat 17
5684 WB Best
Johan Brouwerstraat 17
Het betreft hier een zeer goed afgewerkte half vrijstaande woning met een goed gekozen indeling en gelegen op een gewilde woonlocatie.Type woning: Eindwoning Bouwjaar: 1960 Perceel oppervlak: 132 m² Woonoppervlak: 123 m² Inhoud: 369 m³ Isolatie: Gevel- en dakisolatie alsmede dubbele beglazingU betreedt de woning via de entree welke toegang biedt tot de hal met de meterkast en betegelde toiletruimte. Sfeervolle living afgewerkt met een massief houten delen vloer welke is doorgelegd over de...
Interesse in deze woning
Neem contact op
0499 33 58 58
Kenmerken
Omschrijving
Het betreft hier een zeer goed afgewerkte half vrijstaande woning met een goed gekozen indeling en gelegen op een gewilde woonlocatie.
Type woning: Eindwoning
Bouwjaar: 1960
Perceel oppervlak: 132 m²
Woonoppervlak: 123 m²
Inhoud: 369 m³
Isolatie: Gevel- en dakisolatie alsmede dubbele beglazing
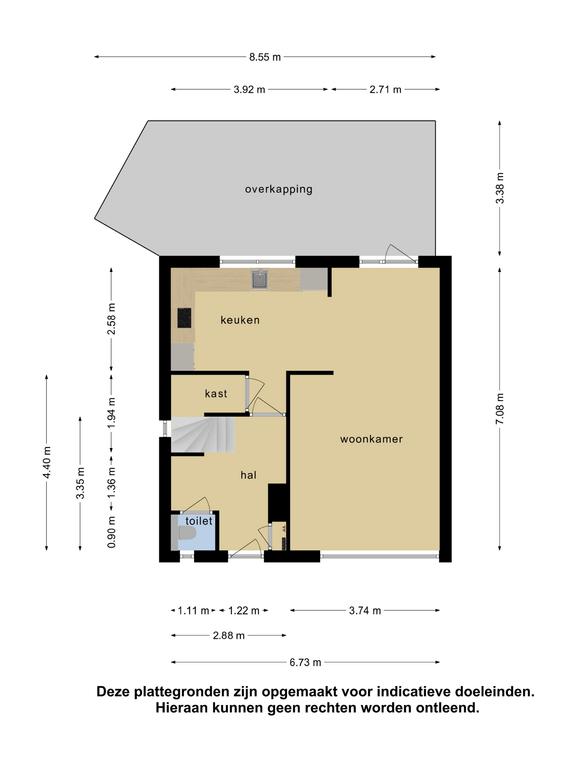
U betreedt de woning via de entree welke toegang biedt tot de hal met de meterkast en betegelde toiletruimte. Sfeervolle living afgewerkt met een massief houten delen vloer welke is doorgelegd over de gehele begane grond. Open keuken met een luxe en eigentijdse keukeninrichting voorzien van diverse inbouwapparatuur. Verdiepte kelderruimte voor de opslag van provisie. Privacy biedende achtertuin met een afsluitbare achterom, terrasoverkapping en tevens toegang tot de geïsoleerde berging. Op de 1e verdieping bevinden zich de 3 slaapkamers, overloop en een complete badkamer. Middels vaste trap te bereiken 2e etage met een voorzolder en toegang tot de 4e slaapkamer met dakkapel aan zowel de voor als achterzijde van de kapconstructie.
De woning is gelegen op korte afstand van goede voorzieningen als winkelcentra, scholen, natuurgebieden, NS station, sportaccommodaties en belangrijke uitvalswegen zijn snel bereikbaar.
Voor een interne bezichtiging kunt u contact opnemen met ons kantoor.
INDELING:
BEGANE GROND:
Entree.
Hal afgewerkt met een massief houten delen vloer, stucwerk wanden en een stucwerk plafond met inbouwverlichting.
Meterkast met de gas- en elektrameter en schakelkast voorzien van diverse groepen en aardlekschakelaars.
Betegelde toiletruimte met een design radiator en het zwevend closet met muurspoeling.
Verdiepte geheel betegelde kelder/provisieruimte met legschappen.
De sfeervolle living is afgewerkt met een massief houten delen vloer, stucwerk wanden en een stucwerk plafond met inbouwverlichting.
Open keuken met een gelijke afwerking als de woonkamer.
Deze keuken is voorzien van een recent vernieuwde luxe keukeninrichting in hoekopstelling met diverse laden en kastjes, composiet werkblad, combi oven/magnetron, inductie kookplaat, RVS afzuigkap, vaatwasmachine en koelkast.
1E VERDIEPING:
Middels trapopgang in hal te bereiken.
Overloop afgewerkt met een laminaatvloer, stucwerk wanden en een stucwerk plafond.
Slaapkamer 1 aan voorzijde is afgewerkt met een laminaatvloer, strak stucwerk wanden en -plafond.
Slaapkamer 2 aan achterzijde is afgewerkt met een laminaatvloer, strak stucwerk wanden en -plafond.
Slaapkamer 3 aan achterzijde is afgewerkt met een laminaatvloer, strak stucwerk wanden en -plafond.
De 3 slaapkamers zijn voorzien van elektrisch bedienbare rolluiken.
Eigentijdse betegelde badkamer voorzien van vloerverwarming, een inloopdouche met thermostaatkraan, zwevend closet en een badmeubel met geïntegreerde dubbele wastafel.
2E VERDIEPING:
Via vaste trapopgang te bereiken.
Voorzolder met bergkasten, aansluiting t.b.v. de wasapparatuur en opstelling van de HR c.v. combiketel van Remeha (2020).
Ruime zolderslaapkamer (4e slaapkamer) met bergkasten onder de schuinte van de kap, een dubbele dakkapel aan voor en achterzijde van de kapconstructie en afgewerkt met een laminaatvloer, stucwerk wanden en een gipsplaten plafond voorzien van inbouwverlichting.
BUITEN:
Privacy biedende achtertuin op zonzijde gelegen met een gemetselde deels houten delen erfafscheiding, buitenkraantje, sfeervolle terrasoverkapping en aangelegd met sierbestrating.
Gemetselde vrijstaande geïsoleerde berging met een pannen dak (3.75 x 3.73 meter).
ALGEMEEN:
* Het betreft hier een traditioneel gebouwd woonhuis met een betonnen begane grond en 1e verdiepingsvloer, gemetselde buitengevels en een houten kapconstructie met pannen gedekt.
* De woning is geheel voorzien van dubbele beglazing in kunststof kozijnen geplaatst in 1999.
* Het dakkapel aan voor- en achterzijde is voorzien van HR++ beglazing in 2010.
* De woning wordt verwarmd door radiatoren welke zijn aangesloten op de Remeha HR combiketel (2020)
* Elektrakast voorzien van 7 groepen, kookgroep en aardlekschakelaars.
* Gelegen nabij goede voorzieningen als:
- Treinstation 4 minuten fietsen 1,05 km
- Bushalte 2 minuten lopen 0,15 km
- Centrum 4 minuten lopen 0,26 km
- Snelweg afrit 3 minuten rijden 1,61km
- Supermarkt 5 minuten lopen 0,36 km
- Kinderopvang 6 minuten lopen 0,42 km
- Basisonderwijs 6 minuten lopen 0,42 km
- Voortgezet onderwijs 4 minuten fietsen 1,11 km
- Eindhoven Airport 12 minuten rijden 6,2 km.
* Hypotheek met NHG mogelijk.
Plattegronden
Foto's

