Spoorstraat 7
5684 AA Best
Spoorstraat 7
Het betreft hier een degelijk en traditioneel gebouwd ruim vrijstaand woonhuis met energielabel A gelegen op een mooie woonlocatie in een rustige woonstraat. De woning heeft o.a. te bieden een aanpandige garage, carport, royale living in L-vorm uitgevoerd, open keukenruimte met een praktische keukeninrichting, ontvangsthal met de toilet en meterkast, aanpandige hobbyruimte/berging in spouwmuur uitgevoerd, mooie tuin rondom, 4 slaapkamers, bergkamer/c.v. ruimte en een moderne gemoderniseerde badk...
Interesse in deze woning
Neem contact op
0499 33 58 58
Kenmerken
Omschrijving
Het betreft hier een degelijk en traditioneel gebouwd ruim vrijstaand woonhuis met energielabel A gelegen op een mooie woonlocatie in een rustige woonstraat.
De woning heeft o.a. te bieden een aanpandige garage, carport, royale living in L-vorm uitgevoerd, open keukenruimte met een praktische keukeninrichting, ontvangsthal met de toilet en meterkast, aanpandige hobbyruimte/berging in spouwmuur uitgevoerd, mooie tuin rondom, 4 slaapkamers, bergkamer/c.v. ruimte en een moderne gemoderniseerde badkamer.
Type woning: Vrijstaande woning
Energielabel: A
Bouwjaar: 1972
Perceel oppervlak: 433 m²
Woonoppervlak: 150 m²
Overig inpandige ruimte berging: 28 m²
Gebouwgebonden buitenruimte: 38 m²
Inhoud: 433 m³
Gelegen op een gewilde woonlocatie in de woonwijk "Naastenbest" nabij goede voorzieningen als winkelcentrum, scholen, recreatie, sportaccommodaties, treinstation en belangrijke uitvalswegen.
Graag willen wij u rondleiden in deze woning, zodat u de woning met eigen ogen kunt bekijken.
Hiervoor kunt u contact opnemen met ons kantoor.
INDELING:
BEGANE GROND:
Overdekte entree met een hardhouten voordeur.
Hal met garderobe is afgewerkt met een tegelvloer, schoonmetselwerk wanden en een houten delen plafond.
Meterkast met de gas- en elektrameter en de vernieuwde elektra-schakelkast voorzien van diverse groepen en aardlekschakelaars.
Licht betegelde toiletruimte met een fonteintje, radiator en een zwevend closet met muurspoeling.
De royale living in L-vorm is afgewerkt met een sfeervolle open-haard partij en afgewerkt met een natuurstenen vloer, stucwerk (granol) deels schoonmetselwerk wanden en een houten delen plafond.
Provisie/trapkast met legschappen.
De open keukenruimte is ingericht met een eikenhouten keukeninrichting in U-opstelling voorzien van diverse laden en kasten, koelkast, vrieskast, elektrische oven, inductie kookplaat, afzuigkap en een rvs spoelbak.
De ruime aanpandige garage met een lengte van 8.40 meter is in spouwmuur uitgevoerd en is voorzien van een loopdeur, stalen garagedeur, radiator, waterpunt en elektra voorziening.
De separate aanpandige multifunctionele ruimte is dus geschikt voor meerdere doeleinden zoals bijvoorbeeld werkkamer, berging of hobbykamer.
Deze ruimte is voorzien van een open haard partij en afgewerkt met een tegelvloer, schoonmetselwerk wanden en een houten delen plafond met geïntegreerde lichtkoepel.
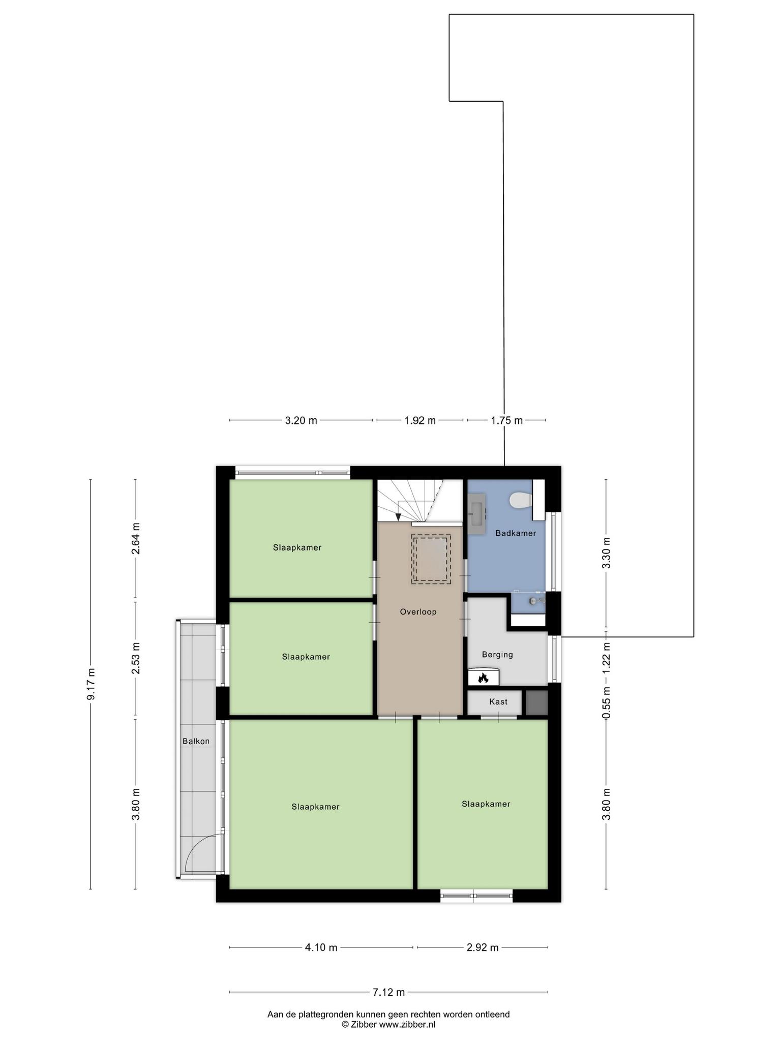
2E VERDIEPING:
Middels hardhouten trapopgang te bereiken.
Overloop afgewerkt met vloerbedekking, stucwerk (granol) wanden en een houten delen plafond met lichtkoepel.
Bergkamer met de opstelling van de Nefit HR combiketel uit 2019 en de Solar omvormer t.b.v. de zonnepanelen.
Slaapkamer 1 betreft de hoofdslaapkamer met wastafel en toegang tot het balkon.
Deze kamer is afgewerkt met vloerbedekking, behangen wanden en een houten delen plafond.
Slaapkamer 2 met een wastafel, muurkast en afgewerkt met vloerbedekking, behangen wanden en een houten delen plafond.
Slaapkamer 3 is afgewerkt met vloerbedekking, behangen wanden en een houten delen plafond.
Slaapkamer 4 aan achterzijde is afgewerkt met vloerbedekking, stucwerk wanden en een houten delen plafond.
De recent verbouwde badkamer is afgewerkt met een moderne vloer en wandtegel en voorzien van een badmeubel met geïntegreerde wastafel, design radiator, zwevend closet en een fijne inloopdouche met glaswand en thermostaatkraan.
BUITEN:
De oprit is geschikt voor meerdere voertuigen en is deels overkapt met een carport voorzien van lichtkoepels.
De zonnige achter en zijtuin is afgezet middels een houten delen erfafscheiding en aangelegd met terrastegels, gazon, terrastegels en een kleine vijver.
Tevens biedt de achtertuin toegang tot een aanpandige werkkast.
ALGEMEEN:
* Het woonhuis is traditioneel gebouwd met een betonnen begane grond en verdiepingsvloer, gemetselde buitengevels en een geïsoleerd plat dak met een bitumen daklaag.
* Energiezuinig (Label A+)
* Zonnepanelen zijn eigendom en zijn dus bij de koop inbegrepen.
* Voorzien van kunststof kozijnen en ramen met dubbele beglazing geplaatst in 2012.
* Verwarming middels een Nefit HR c.v. combiketelit 2019.
* Voldoende parkeermogelijkheden op de openbare parkeervakken en op eigen terrein mogelijk.
* Aanpandige ruime garage en oprit.
* Carport.
* Gelegen op korte afstand van goede voorzieningen zoals:
- Treinstation Best
- Snelweg op-/afrit (A2, A50 en A58)
- Supermarkt
- Kinderopvang
- Basisonderwijs
- Voortgezet onderwijs (Heerbeeck college)
- Diverse sportverenigingen
- Eindhoven airport
- Brainport regio.
* Deze documentatie is puur informatief en hieraan kunnen geen rechten worden ontleend aan ons kantoor of verkopers. De koper heeft het recht en plicht tot het onderzoeken van de technische bouwkundige staat, inzien van de bestemmingsplannen, inhoud en oppervlakte maten en het controleren van de inhoudelijk benoemde zaken in deze brochure en die op Funda vermeld staan.
Plattegronden


Foto's


























