Ziteind 52
5685 EJ Best
Ziteind 52
Deze gemoderniseerde en uitgebouwde 2-onder-1 kap woning met inpandige garage is gelegen in de mooie woonwijk "Heivelden".Type woning: Geschakelde 2 onder 1 kap Bouwjaar: 2002 Perceel oppervlak: 226 m² Woonoppervlak: 138 m² Inhoud: 520 m³ Isolatie: Vloer-, gevel- en dakisolatie alsmede HR dubbele beglazing.Het betreft hier een modern afgewerkte woning welke in 2011 op de begane grond is uitgebouwd en gemoderniseerd. De begane grond is ingedeeld met een hal, toiletruimte, meterkast, royal...
Interesse in deze woning
Neem contact op
0499 33 58 58
Kenmerken
Omschrijving
Deze gemoderniseerde en uitgebouwde 2-onder-1 kap woning met inpandige garage is gelegen in de mooie woonwijk "Heivelden".
Type woning: Geschakelde 2 onder 1 kap
Bouwjaar: 2002
Perceel oppervlak: 226 m²
Woonoppervlak: 138 m²
Inhoud: 520 m³
Isolatie: Vloer-, gevel- en dakisolatie alsmede HR dubbele beglazing.
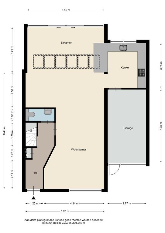
Het betreft hier een modern afgewerkte woning welke in 2011 op de begane grond is uitgebouwd en gemoderniseerd. De begane grond is ingedeeld met een hal, toiletruimte, meterkast, royale uitgebouwde sfeervolle living van maar liefst (58 m²) met een schuifpui en een prachtige lichtstraat, open keuken met een zeer luxe keukeninrichting voorzien van diverse inbouwapparatuur en een kookschiereiland met zitbar. De keuken verschaft tevens toegang tot de inpandige garage. Onder architectuur aangelegde achtertuin met een houten terrasoverkapping en separate berging. Op de 1e verdieping bevinden zich de 3 slaapkamers, compleet ingerichte badkamer met ligbad, douche, wastafel en closet en de overloop. Via vaste trap te bereiken 2e verdieping met de 4e slaapkamer voorzien van dakkapel.
De woning is gelegen op korte afstand van goede voorzieningen als winkelcentra, scholen, NS- en busstation, sportaccommodaties, recreatiegebieden en belangrijke uitvalswegen zijn snel bereikbaar.
Voor een interne bezichtiging kunt u contact opnemen met ons kantoor.
INDELING:
BEGANE GROND:
Overdekte entree met lichtpunt.
Hal afgewerkt met een gietvloer, stucwerk wanden en een stucwerk plafond.
Meterkast met de glasvezelaansluiting, water-, gas- en elektrameter en de schakelkast voorzien van diverse groepen en aardlekschakelaars.
Betegelde toiletruimte met een fonteintje en een zwevend closet met muurspoeling van (Villeroy en Boch).
De royale uitgebouwde living met een schuifpui en lichtstraat voor extra natuurlijke lichtinval is afgewerkt met een gietvloer voorzien van vloerverwarming, strak stucwerk wanden en een stucwerk plafond.
Open keuken met een eigentijdse en luxe keukeninrichting in U-opstelling geplaatst en voorzien van diverse laden en kasten, apothekerskast, natuurstenen aanrechtblad, Siemens koelkast, 3 diepvriesladen, Siemens stoomoven, Siemens koffie machine, Siemens vaatwasmachine, Inventum 5-pits inductie kookplaat en een rvs afzuigkap.
De inpandige garage is via een inpandige loopdeur te bereiken. Deze garage is voorzien van een stalen kanteldeur met loopdeur, aansluiting t.b.v. wasapparatuur en elektrapunten.
1E VERDIEPING:
Middels vaste trap in hal te bereiken.
Overloop afgewerkt met stoffen vloerbedekking, pleisterwerk wanden en een spuitwerk plafond.
Slaapkamer 1 aan voorzijde is afgewerkt met een laminaatvloer, pleisterwerk wanden en een spuitwerk plafond.
Slaapkamer 2 aan achterzijde is afgewerkt met een laminaatvloer, pleisterwerk wanden en een spuitwerk plafond.
Slaapkamer 3 aan voorzijde met een praktische kastwand met schuifdeuren en afgewerkt met een laminaatvloer, pleisterwerk wanden en een spuitwerk plafond.
Moderne en geheel betegelde badkamer voorzien van een ligbad, wastafel, separate douche en een zwevend closet met muurspoeling van (Villeroy & Boch).
2E VERDIEPING:
Via vaste trap op overloop te bereiken.
Zolderetage met een dakkapel aan voorzijde, Velux dakvenster en bergruimte onder de schuinte van de kap.
De 4e slaapkamer is afgewerkt met een laminaatvloer en pleisterwerk wanden.
Opstelling in kastruimte van de HR c.v. combiketel (Bosch uit 2002) en de unit t.b.v. de mechanische ventilatie.
BUITEN:
Fraai en onder architectuur aangelegde privacy biedende omsloten achtertuin welke is aangelegd met terrastegels, kunstgras en aan achterzijde een gezellige terrasoverkapping en aangesloten houten berging voorzien van elektra.
ALGEMEEN:
* Het betreft hier een traditioneel en duurzaam gebouwd woonhuis met gemetselde buitengevels, betonnen verdiepingsvloeren, systeemkap met pannen gedekt en platte daken met een bitumen daklaag.
* Hardhouten ramen deuren en kozijnen.
* Energiezuinig door het gebruik van vloer-, gevel- en dakisolatie alsmede HR beglazing.
* HR c.v. combiketel (Bosch)
* Vloerverwarming aanwezig op de begane grond.
* Energielabel A.
* Gelegen op korte afstand van de volgende voorzieningen:
- Treinstation 7 minuten fietsen 2,08 km
- Bushalte 3 minuten lopen 0,23 km
- Centrum 8 minuten fietsen 2,22 km
- Snelweg afrit/oprit 2 minuten rijden 1,28 km
- Winkelcentrum Heivelden 5 minuten lopen 0,40 km
- Kinderopvang 4 minuten lopen 0,26 km
- Basisonderwijs 6 minuten lopen 0,46 km
- Voortgezet onderwijs (Heerbeeck college) 12 minuten lopen 0,97 km
- Eindhoven Airport 12 minuten rijden 7,5 km.
Plattegronden
Foto's

